
The Farm House is an exceptional six-bedroom home in the peaceful village of Alkborough, offering four reception rooms and four bathrooms. With an attached garage and landscaped gardens, it delivers luxury family living in an elevated countryside setting.
View full property details, with our appointed estate agent, Paul Fox Finest.
About
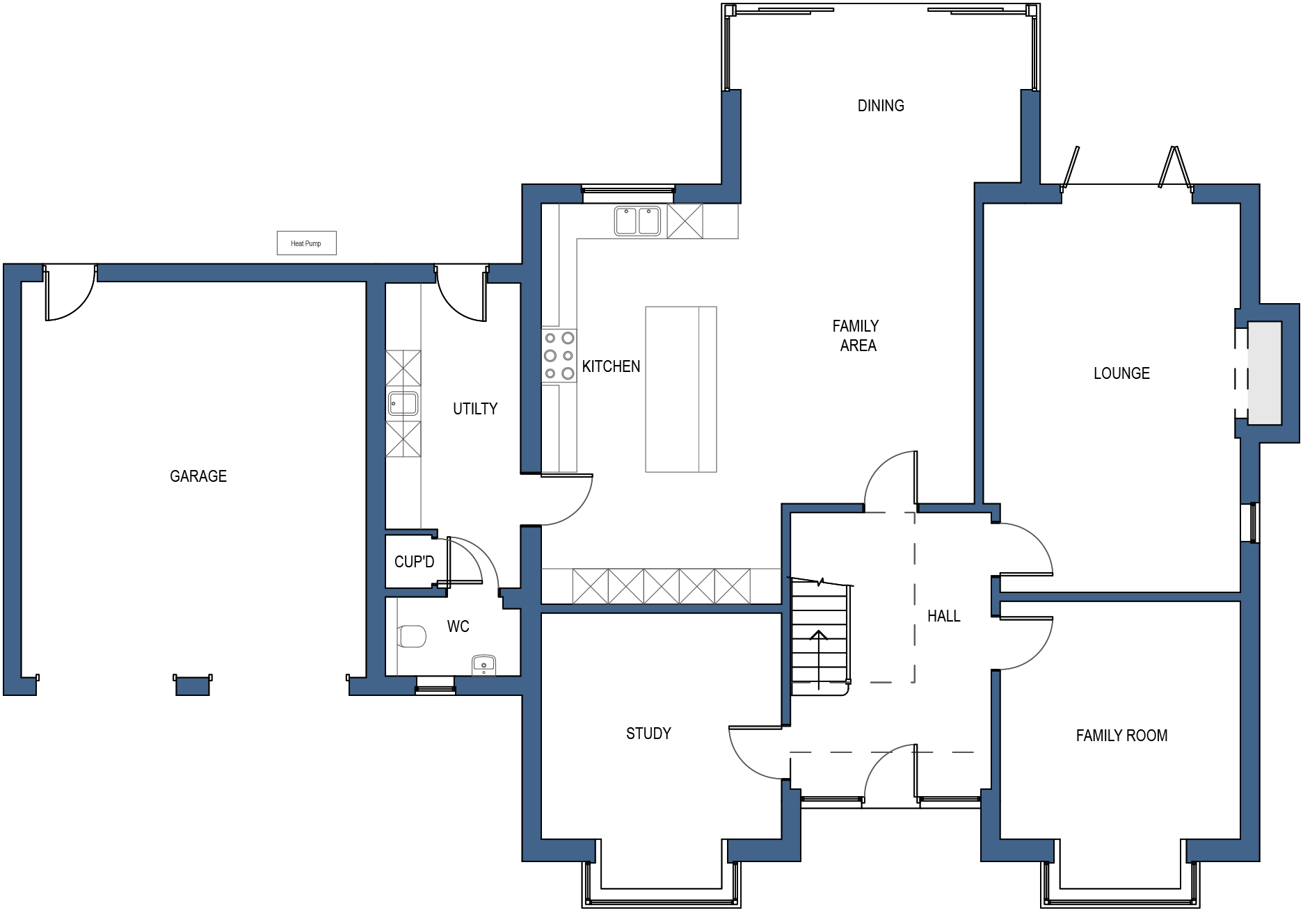
The Farm House is a beautifully designed six-bedroom residence that blends generous space with elegant style. Located in the heart of Alkborough, itโs ideal for families or those seeking room to entertain, offering four spacious reception rooms and four high-quality bathrooms. The layout is thoughtfully arranged to provide both versatility and a sense of flow throughout.
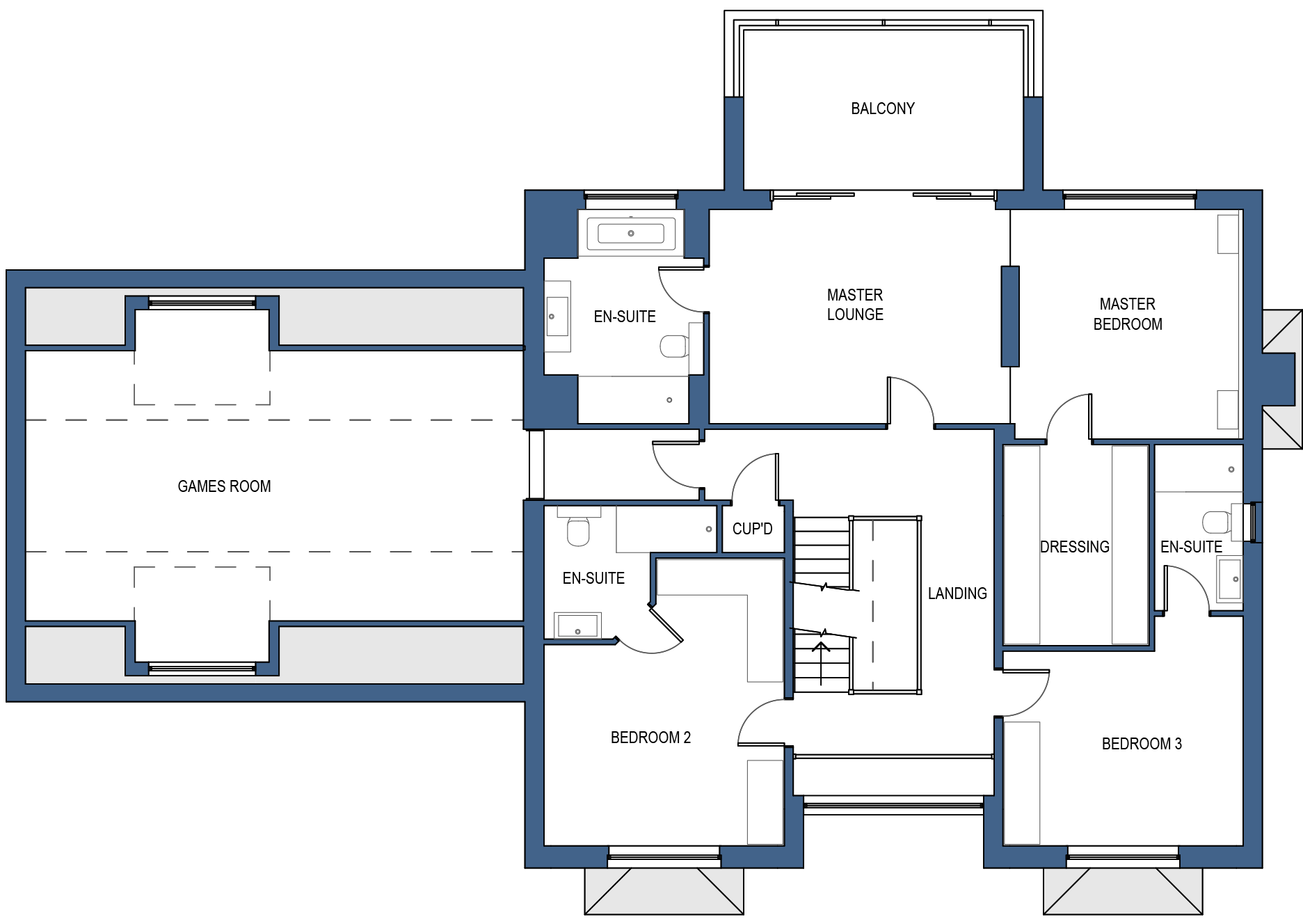
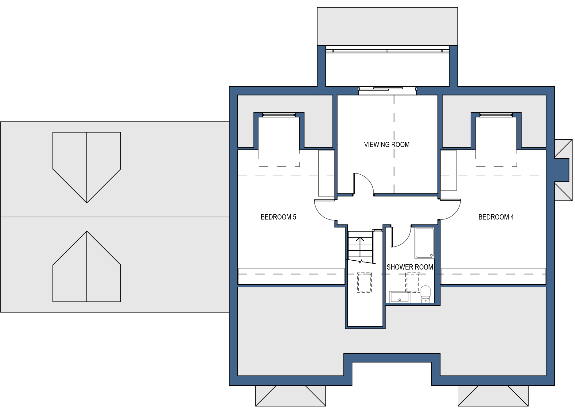
Two stunning balconies bring the outdoors into the heart of this home. The Viewing Room opens onto its own full private balcony, delivering uninterrupted views across the Alkborough Flats and riverside. The Master Suite also includes its own private balcony with seating, creating a tranquil retreat with spectacular scenery.
Set on a large, landscaped plot, The Farm House enjoys a rear garden designed to make the most of its breathtaking views. The elevated position ensures privacy and a strong connection to the surrounding countryside. An attached garage provides secure parking and practical storage without compromising the elegant exterior.
Inside, the home reflects the high standards of the Platinum Collection. From the striking oak and glass staircase to the refined fittings and premium finishes, the attention to detail is second to none. The Farm House is more than a propertyโitโs a lifestyle choice, offering space, beauty, and modern comfort in one of Lincolnshireโs most charming settings. With easy access to village amenities, picturesque walks, and peaceful surroundings, this home offers a rare opportunity for luxury rural living.



Features


Feel free to reach out to our friendly team.